Sundance

Square Feet: 4,533 Total (2,623 Main Level / 1,910 Lower Level)
Additional Rooms:
Bonus room above garage
Game room, rec room and media space in lower level
Bedrooms: 5
Full Bathrooms: 4
Half Bathrooms: 1
Garage: 4 Bays
Parade of Homes

The Precision Collection by Kirella Homes

Sundance
Bedrooms
5
Baths
4
Half Baths
1
Garages
4
Sq Ft
4,533

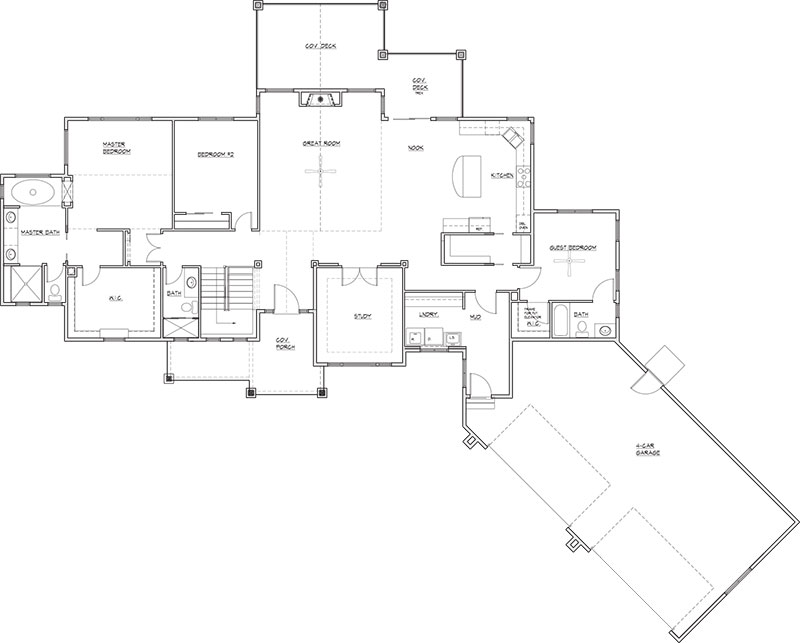
The Sundance is a wonderfully open floor plan, with main level living and entertaining in mind. A welcoming, covered entry opens into a foyer with dramatic vaulted ceilings, which in turn leads to a very spacious great room. Glass windows flank a two-story, stone fireplace with amazing views overlooking the King's Deer Golf Course. An oversized gourmet kitchen, with upgraded granite slab countertops and GE stainless steel appliances, is open to the warm and inviting great room. With easy access to the covered rear deck, this open floor plan also includes a large dining room/study with crown molding, French doors and 10' ceiling.

This home has a large mudroom with separate laundry room, plenty of countertop space and a utility sink. The over-sized four car garage is fully insulated and finished. The master bedroom suite is a relaxing retreat with vaulted ceilings, two-sided gas fireplace and great golf course views. The master bath has upgraded marble vanity tops, a large soaking tub and zero entry shower enclosure with Euro glass surround.

Sundance Floorplan (Main Level)
Sundance Main Level
Sundance Floorplan (Lower Level)
Sundance Lower Level
Precision Collection Standard Features
Interior Finishes
  • Upgraded trim package with 8' interior doors
  • Upgraded 3¼ engineered, pre-finished oak hardwood flooring
  • Upgraded insulation (R49 attic, R24 blown exterior walls, R21 open cell foam on rim joist)
  • Floor-to-ceiling stone surround with raised stone hearth for great room gas fireplace
  • Wrought iron balusters with wood handrail on main stairs
  • Custom, select alder cabinetry
  • Full walk out basement
  • Upgraded granite slab kitchen countertop
  • Travertine slab master bath vanity tops
  • 9' tall, full basement walls (full walk out basement)
Appliances
  • GE Stainless Steel Appliance package with five burner gas cooktop and micro/oven
  • Lennox high-efficiency direct vent furnace (two zone system)
  • Whole house water filtration system
  • A/C prep
Exterior Finishes
  • Full security system (front entry security camera pre-wire)
  • Landscaping allowance
  • Upgraded acrylic stucco finish coat
  • 320 square foot rear covered deck
  • Trex decking (hidden fastener system)
  • Wrought iron rail system
  • Limited Lifetime shingle roof (Class A, 130 mph wind rating)
  • Vinyl windows with Low-E glass (all windows are fixed or casement windows)
Misc/Future Options
  • Basement vault/storm shelter (fully encased in concrete/rebar with steel door)
  • Framed/prep for future elevator
  • Tongue and groove wood finish on front porch and rear deck ceilings
  • All 2x6 framed exterior walls
  • Hot tub pre-wire
  • Gas stub out at deck for BBQ
  • Gas dryer stub